Apartmán - Špindlerův mlýn

INFO O PROJEKTU

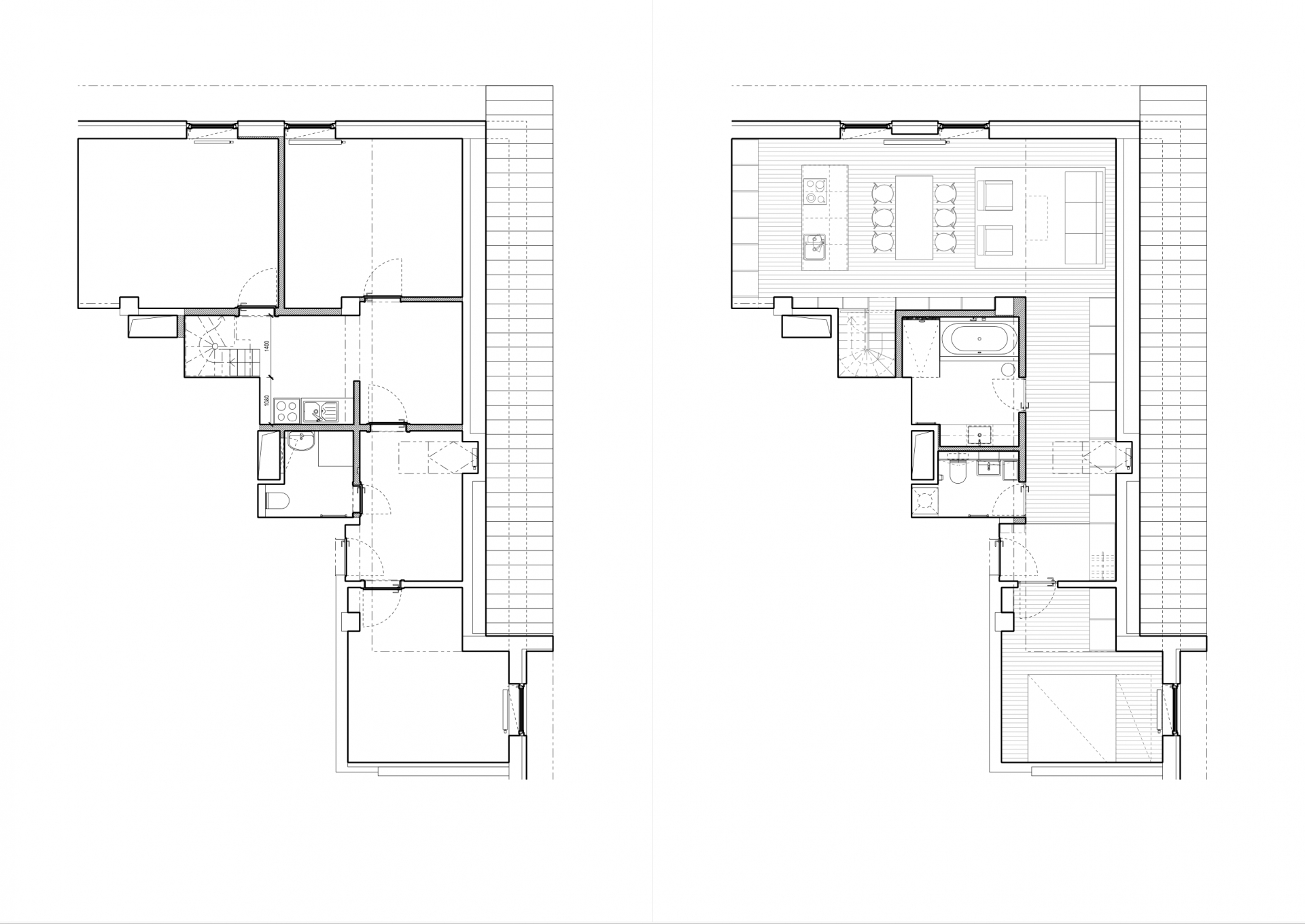
Mezonetový apartmán pro čtyřčlennou rodinu v centru Špindlerova mlýna. Původní dispozice bytu byla kompletně přestavěna. Dole je obytný prostor s kuchyní, ložnice a koupelna, nahoře pokoj dětí přístupný přes vložené dřevěné vřetenové schodiště. Podlaha, obklady stěn i stropů byly obloženy běleným jasanem. Koupelna je přisvětlena bezrámovým prosklením přes chodbu. Vestavný nábytek včetně dveří je také z běleného jasanu.

Foto: Tomáš Rasl

  • Projekt: 2017
  • Realizace: 2017
  • Užitná plocha: 88m2
  • Sdílet: