Rekonstrukce bytu - Praha Krč

INFO O PROJEKTU

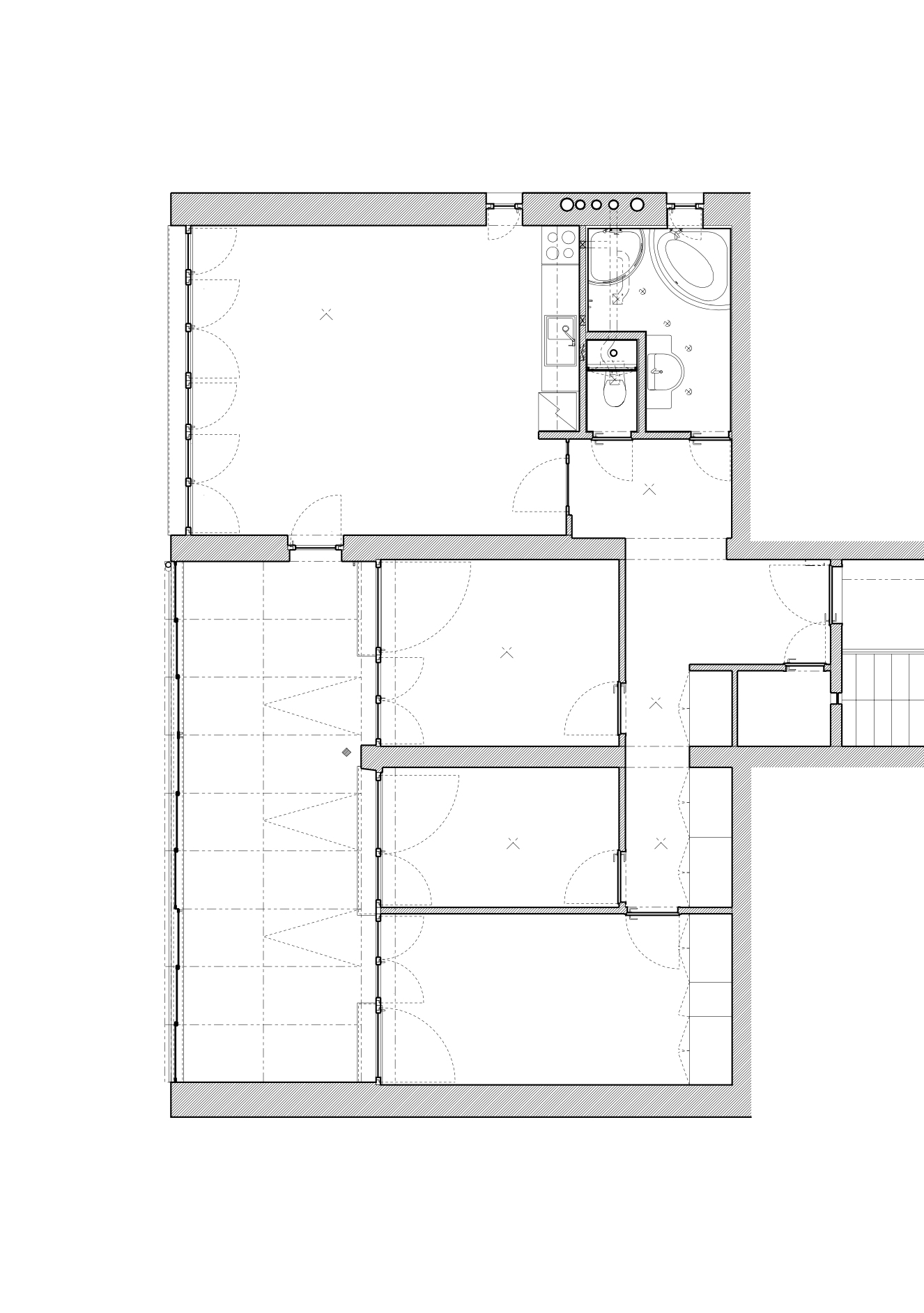
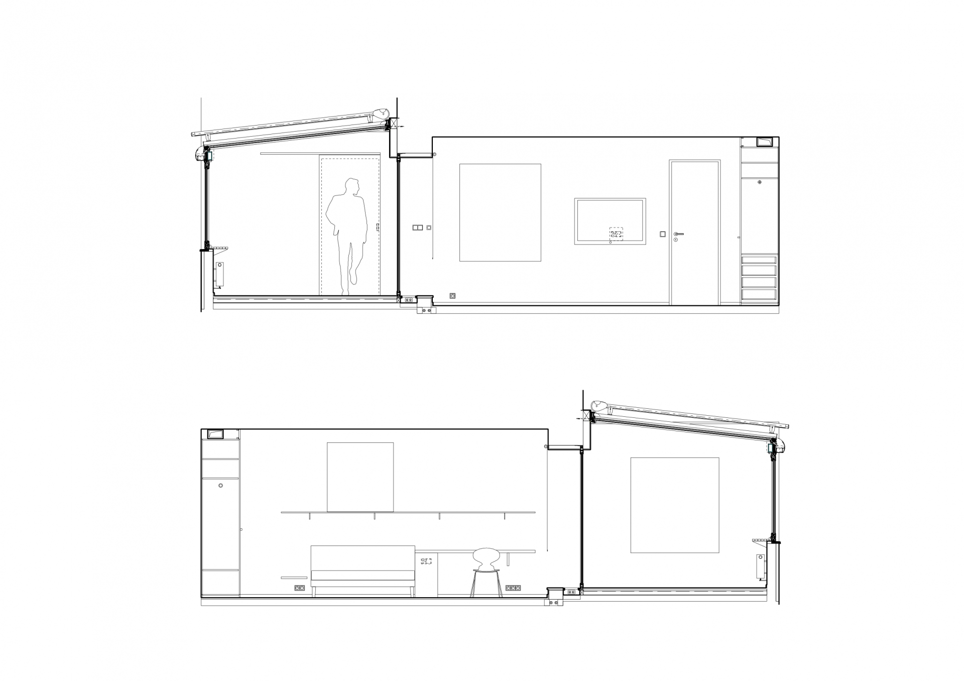
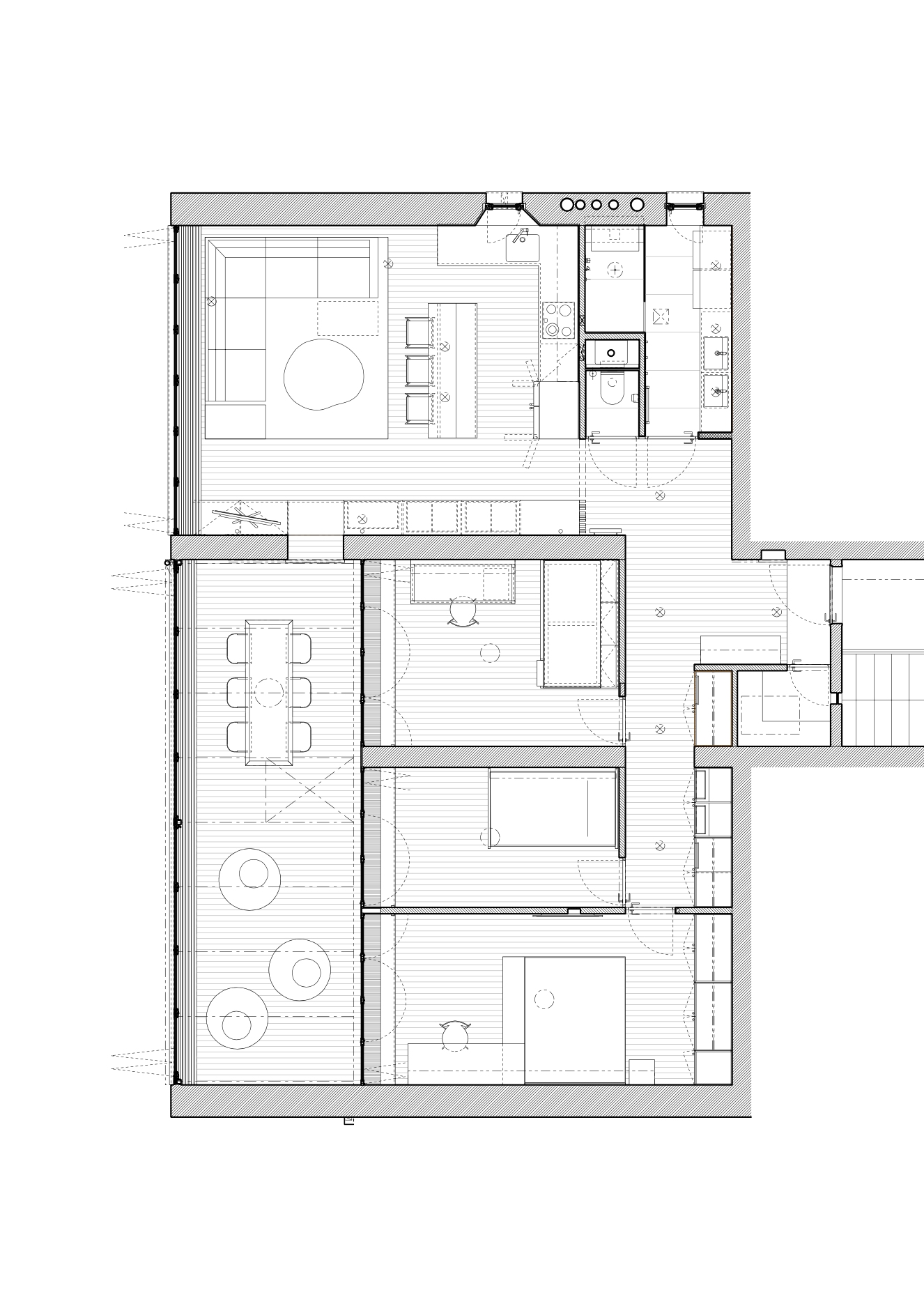
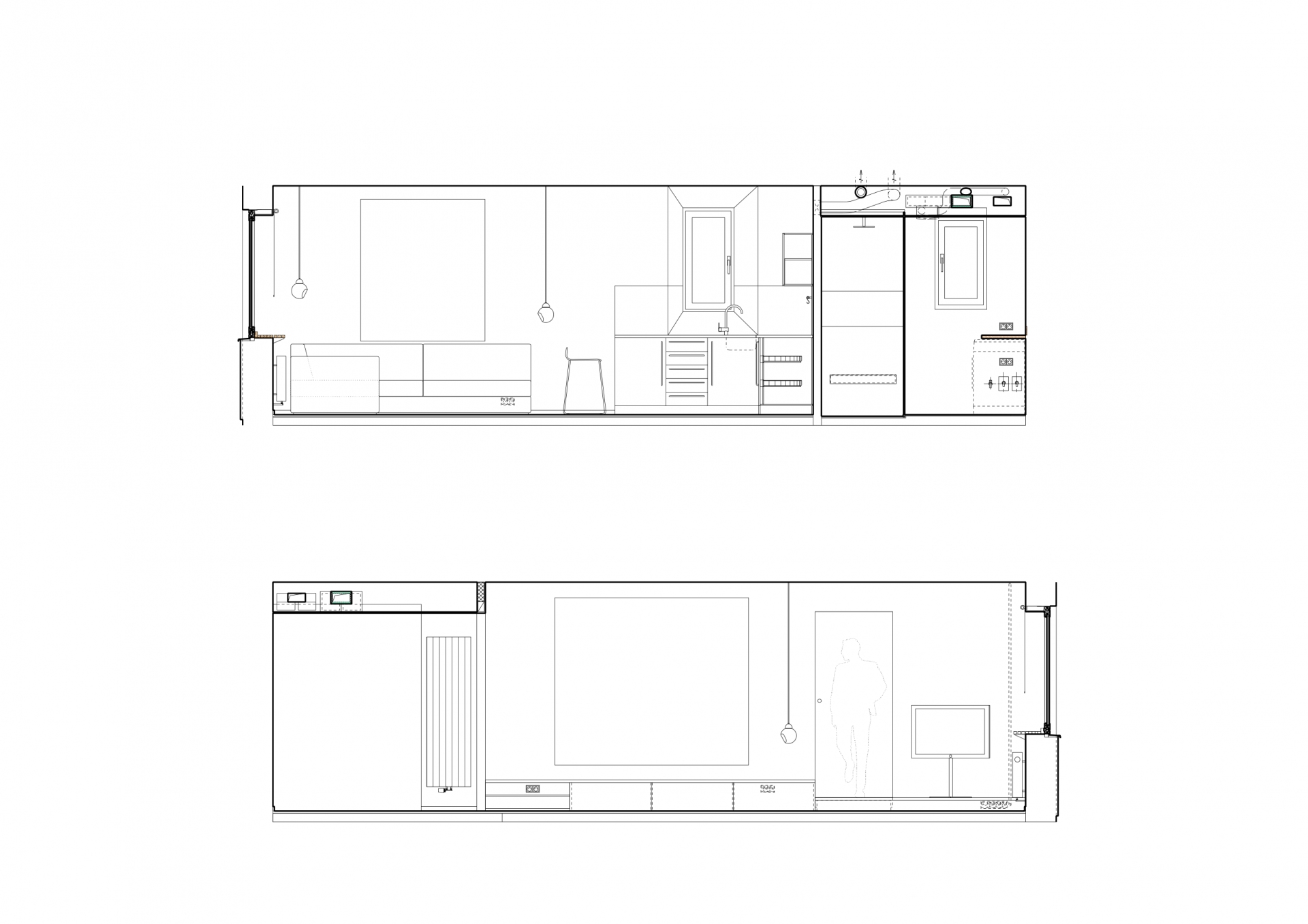
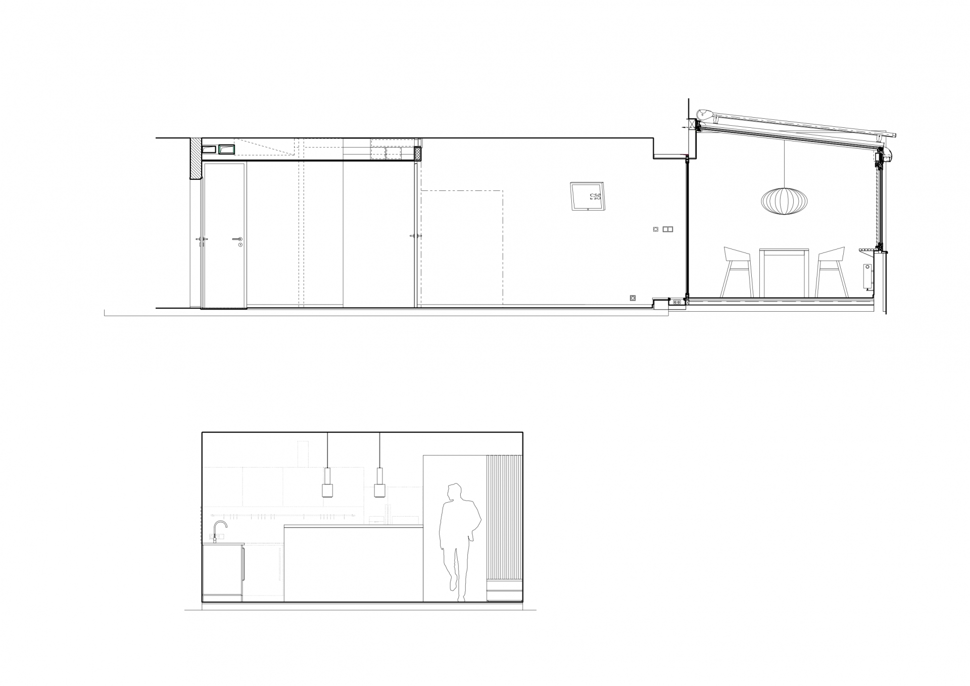
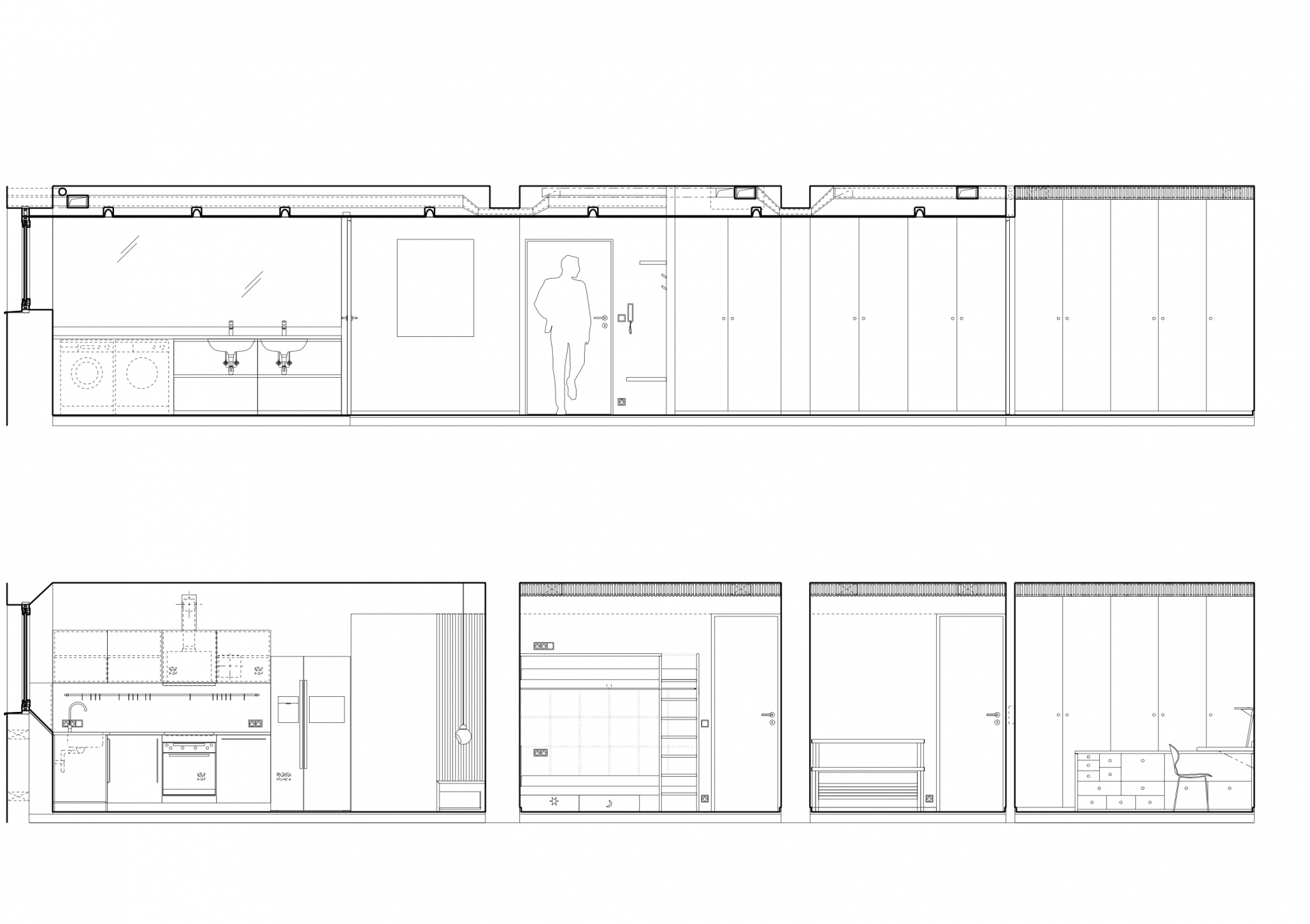
Jihozápadně orientovaný byt se zimní zahradou v terasovém domě z 80-tých let v Praze-Krči s výhledem do údolí. Kompletní rekonstrukce, která zachovává původní počet ložnic a rozšiřuje obytný prostor o celoroční užívání kryté terasy. V ložnicích byly vybourány parapety a byly nahrazeny skládacími francouzskými okny. Průběžná okna v obývacím pokoji a kryté terase byla nahrazena skládacími s otevíráním ven. Okna tak po otevření nabízí nerušený výhled. Změna zimní zahrady na obytnou místnost si vyžádala nucenou výměnu vzduchu v ložnicích. Interiér je vybaven autorským nábytkem se sbírkou obrazů převážně od Oldřicha Tichého a několika svítidly od Alvara Aalta.

Foto: Tomáš Rasl

  • Projekt: 2011
  • Realizace: 2012
  • Užitná plocha: 113m2
  • Sdílet: