Rezinednce Červený dům

INFO O PROJEKTU

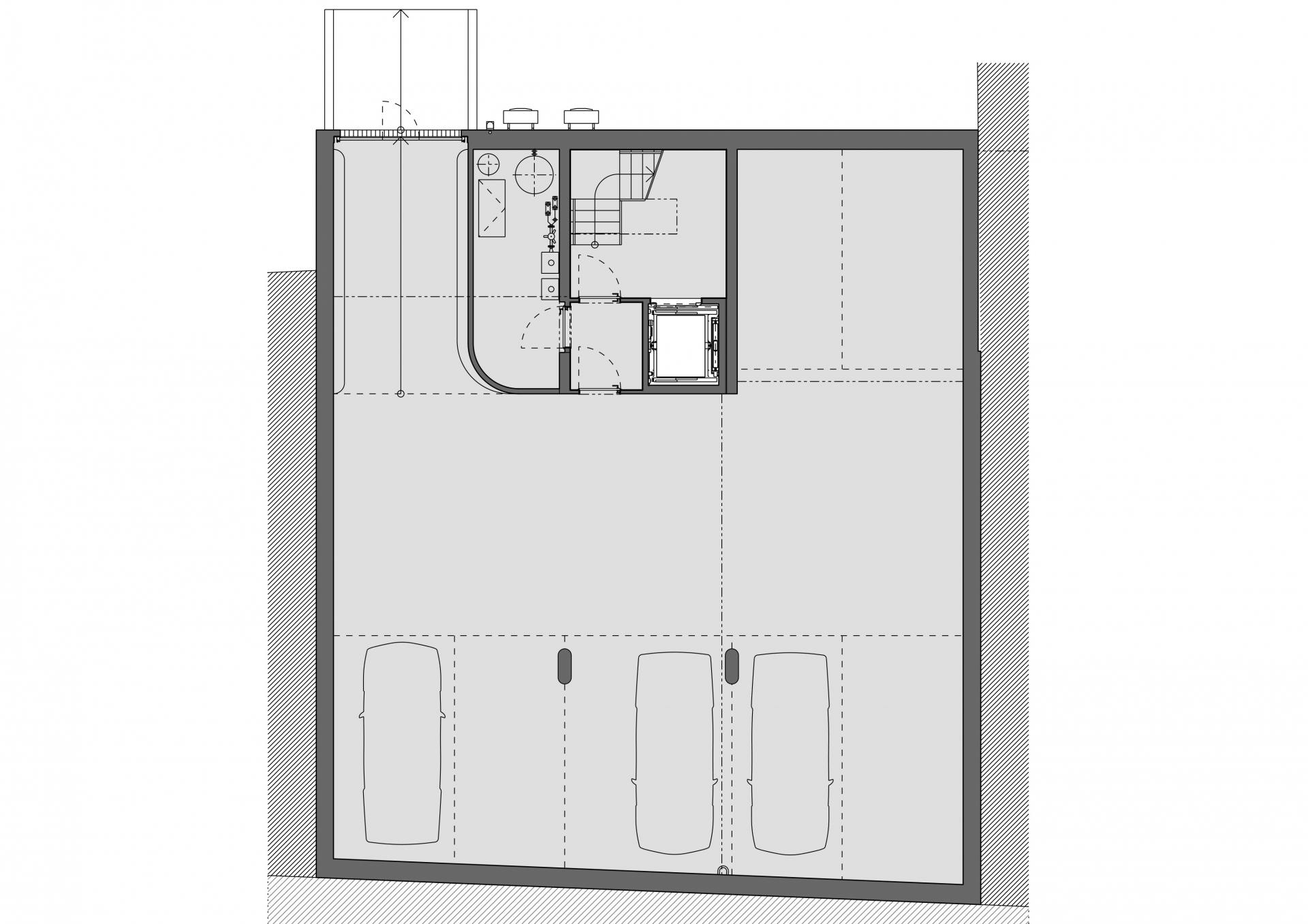
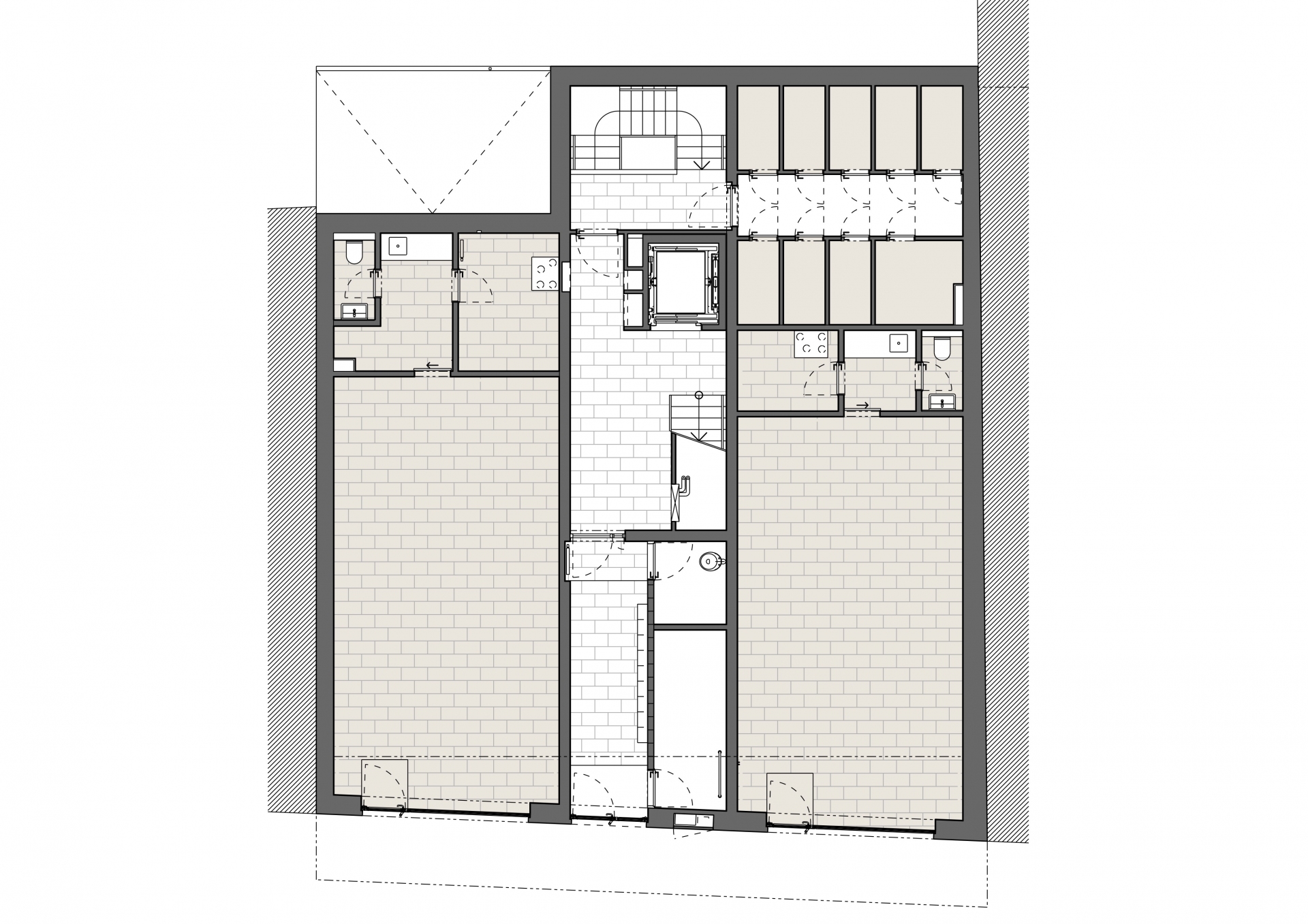
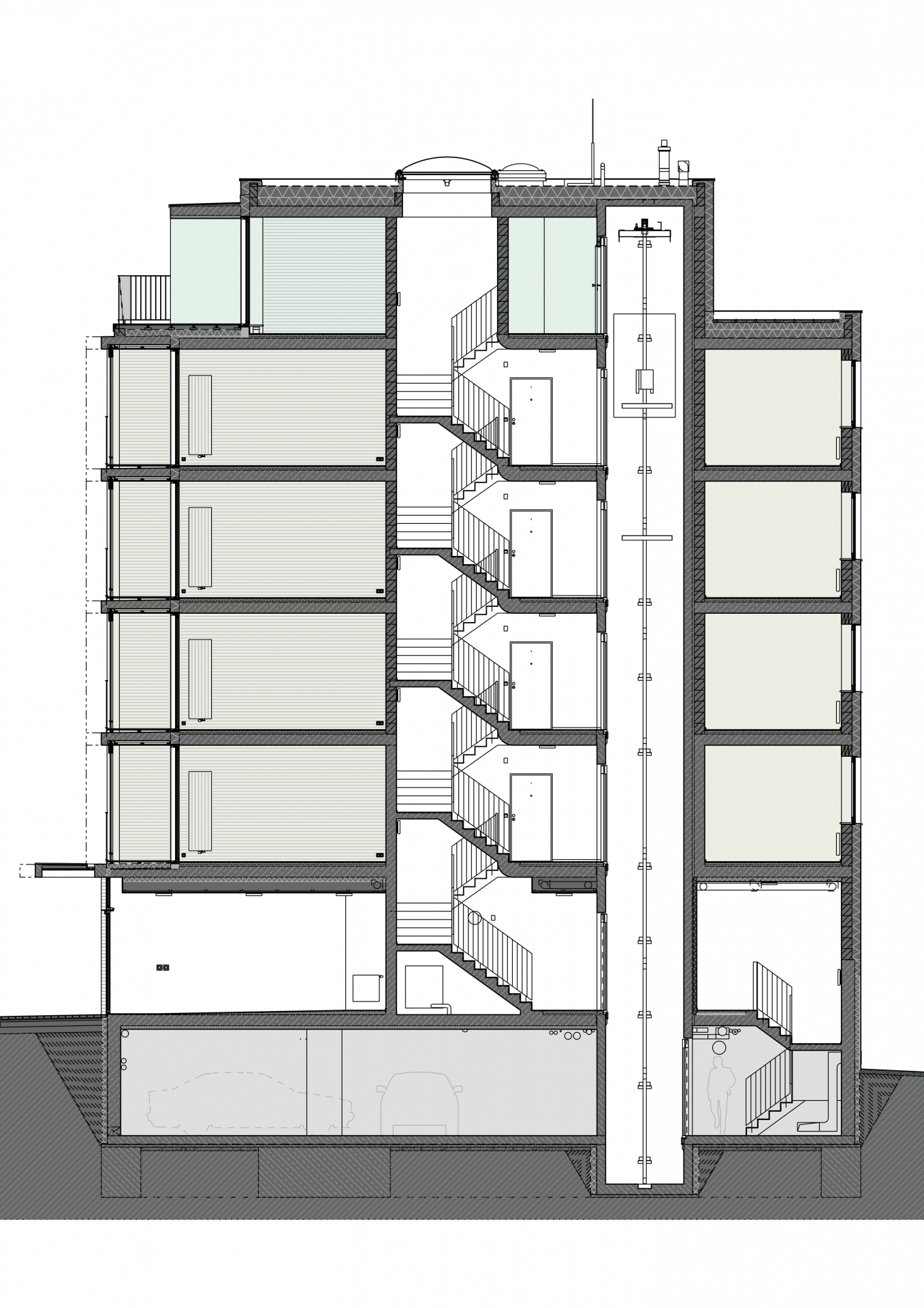
Jedná se o malý rezidenční projekt o 9 bytech v centru Benešova v nově vznikající ulici, která navazuje na ulici Dukelskou. V přízemí jsou dvě komerční nebytové plochy a ve 2 až 6-tém podlaží jsou komfortní byty (2+KK až 3+KK). Důraz je kladen na kvalitní dispoziční řešení a užití materiálů. V posledním 6.patře je největší byt, který jako jediný má přístup přímo z výtahu. Směrem do ulice jsou v bytech prosklená posuvná okna na celou výšku místnosti přirozeně stíněná velkými lodžiemi s hliníkovými žaluziemi. Parkování k bytům je zajištěno v podzemní garáži a ve dvoře. V blízkosti lokality se nachází autobusové i vlakové nádraží, obchody i škola.

  • Projekt: 2020-2023
  • Realizace: 2024-
  • Užitná plocha: 1253m2
  • Sdílet: