Rodinný dům Hutisko

INFO O PROJEKTU

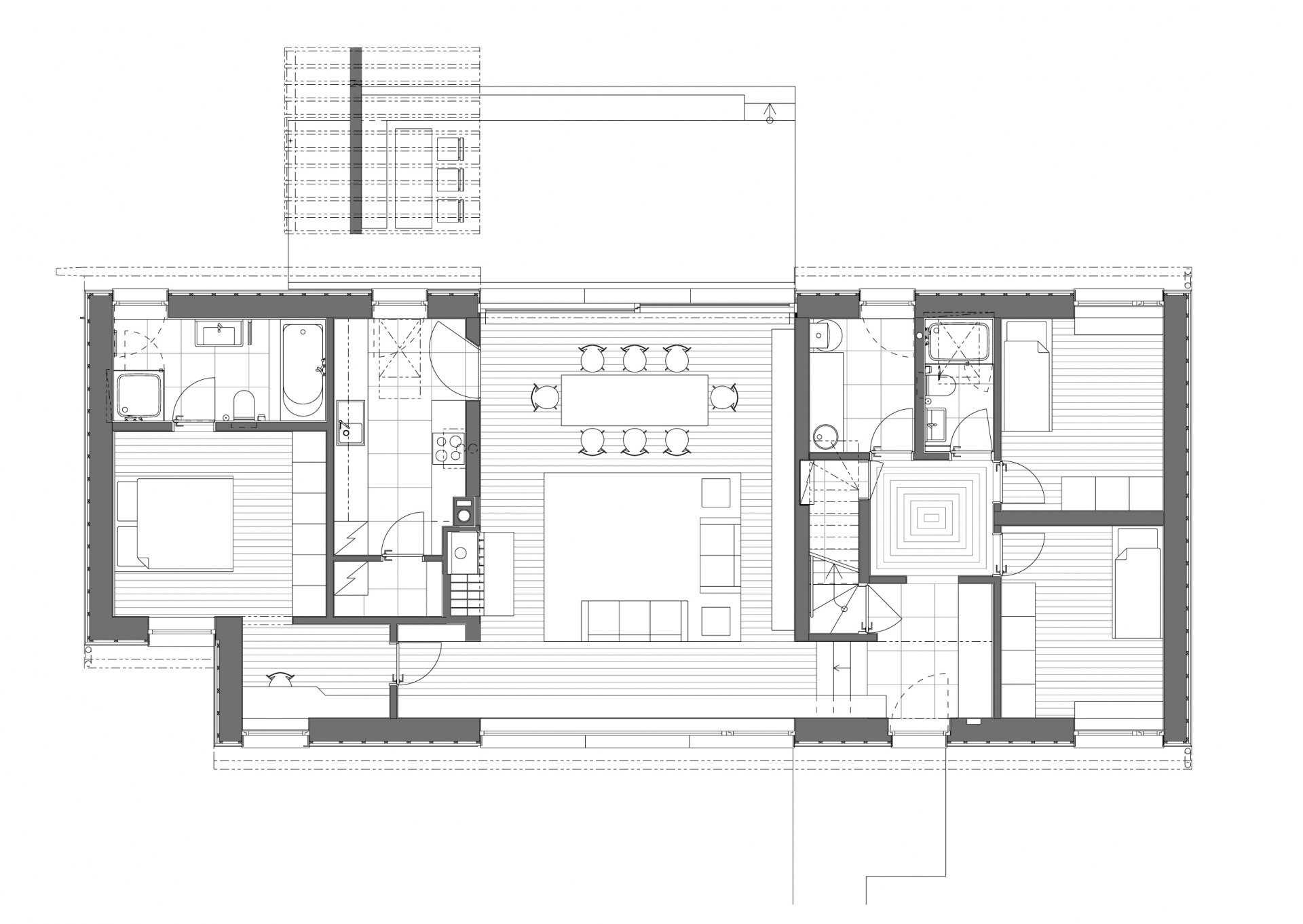
Hutisko - Solanec je podhorská valašská vesnice, kde převládá tradiční stavebnictví, které vychází z kulturních a klimatických podmínek regionu. Individuální rodinný dům současným pohledem respektuje tradiční stavební hodnoty  regionu a zároveň splňuje potřeby a nároky dnešního moderního způsobu života.

Foto: Tomáš Rasl

  • Projekt: 2007 - 2009
  • Realizace: 2009 - 2011
  • Užitná plocha: 153m2
  • Sdílet: