Rodinný dům s ateliérem - Benešov

INFO O PROJEKTU

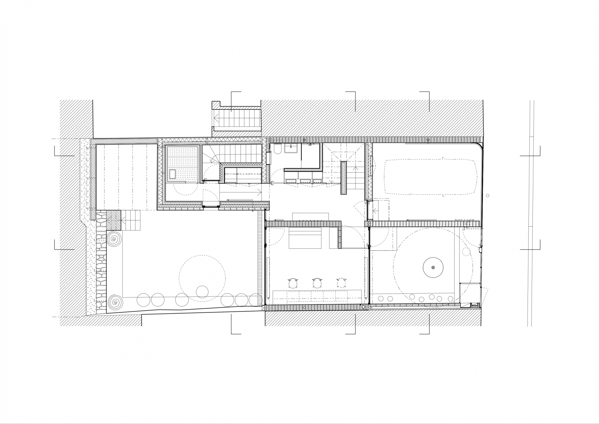
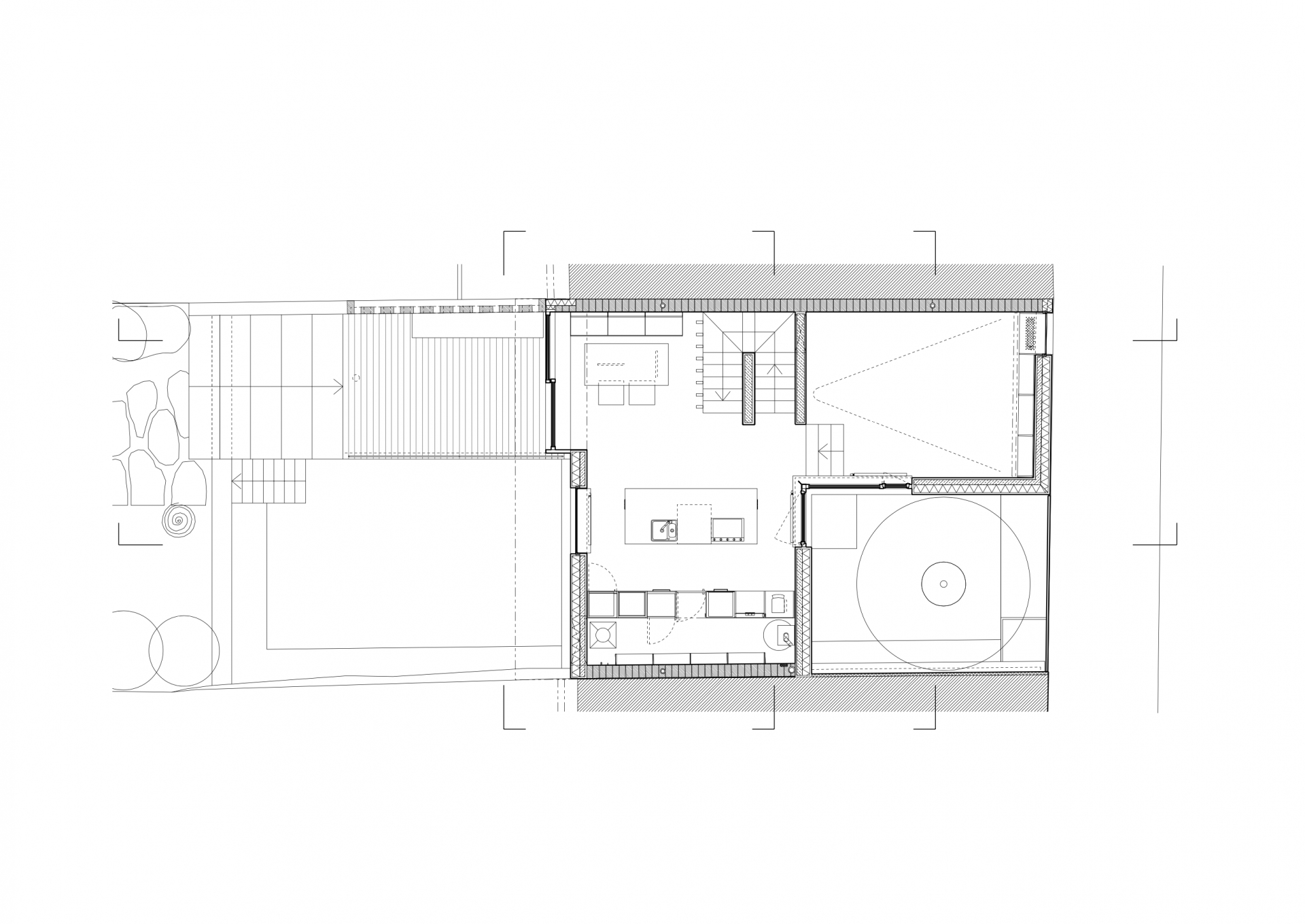
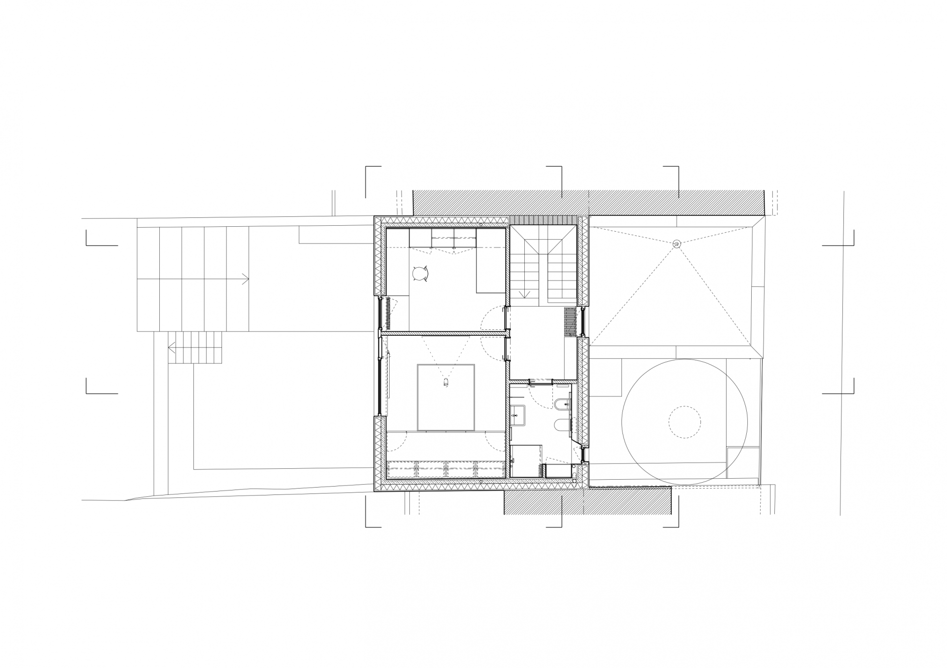
Stavět dům v proluce bylo naším snem. Po koupi starého řadového domu, který jsme pak zbourali, v jedné z mála lokalit Benešova s původní zástavbou poblíž středu města, jsme konečně mohli začít s jeho návrhem. Koncept domu se zrodil ještě ten den, kdy jsme si pozemek poprvé prohlédli a v podstatě už se nezměnil. Na ateliéru (příležitosném pokoji pro hosty), garáži a zázemí domu je posazena obytná část s polozapuštěným a převýšeným obývacím pokojem, kuchyní a jídelnou propojenou se zahradou a nad tím klidová část - koupelna a dvě ložnice obrácené do zahrad. Uliční fronta stávajících domů má jen jedno společné a to, že každý je zcela jiný. I proto jsme se rozhodli prolomit část hmoty průčelí ve prospěch vstupního dvorku. Ten poskytuje zklidněný vstup do domu, příjemné průhledy z ateliéru a v patře odstup obytné části od ulice s přirozeným stíněním jižního sluníčka korunou našeho stromu. Dvůr od ulice dělí plechová brána. Jednotlivé části domu záměrně výškově navazují na okolní římsy a hřebeny a utváří řád v protiváze k prolomení hmoty v ulici. Součástí domu je i původní kamenný sklípek.

Foto: Tomáš Rasl

  • Projekt: 2014 - 2015
  • Realizace: 2015 - 2016
  • Užitná plocha: 177m2
  • Sdílet: