Rodinný dům v Kotelicích

INFO O PROJEKTU

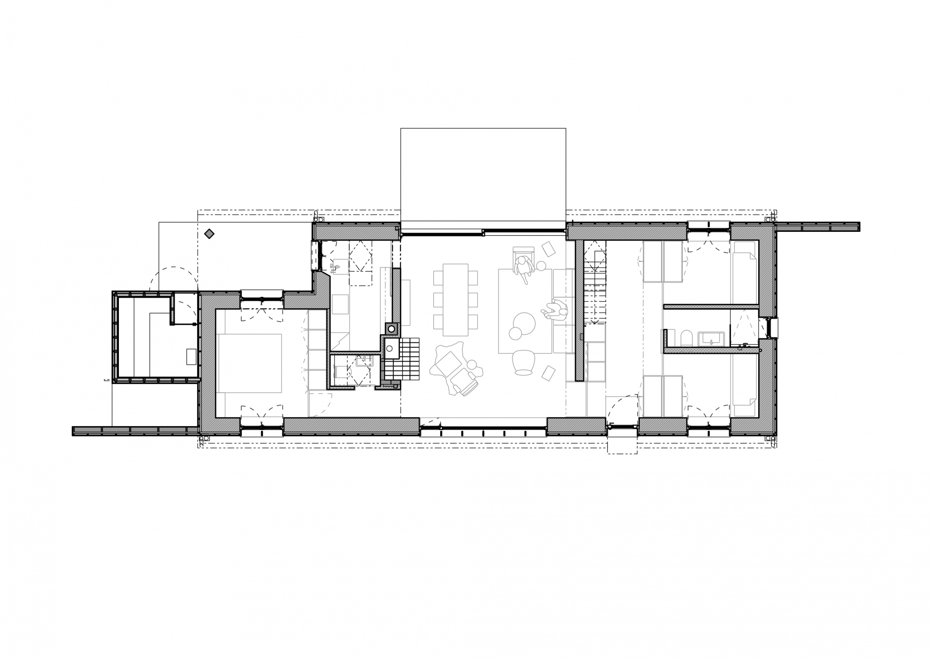
Současný, ale v tradičním duchu navržený dům na okraji malé obce v chráněné krajině Českého středohoří. Původně měl být víkendovým bydlením, ale postupně převážil záměr trvalého bydlení v klidu, na samotě a s výhledem do nádherné krajiny plné sopečných vrchů. Rodina s dospělými dětmi, vracejícími se domů jen občas, jejichž místo důstojně zaujala fenka irského setra. Rodina spjatá se zahradou.

  • Projekt: 2016-2018
  • Realizace: 2019-2022
  • Užitná plocha: 116m2
  • Sdílet: