Rodinný dům v Krhanicích

INFO O PROJEKTU

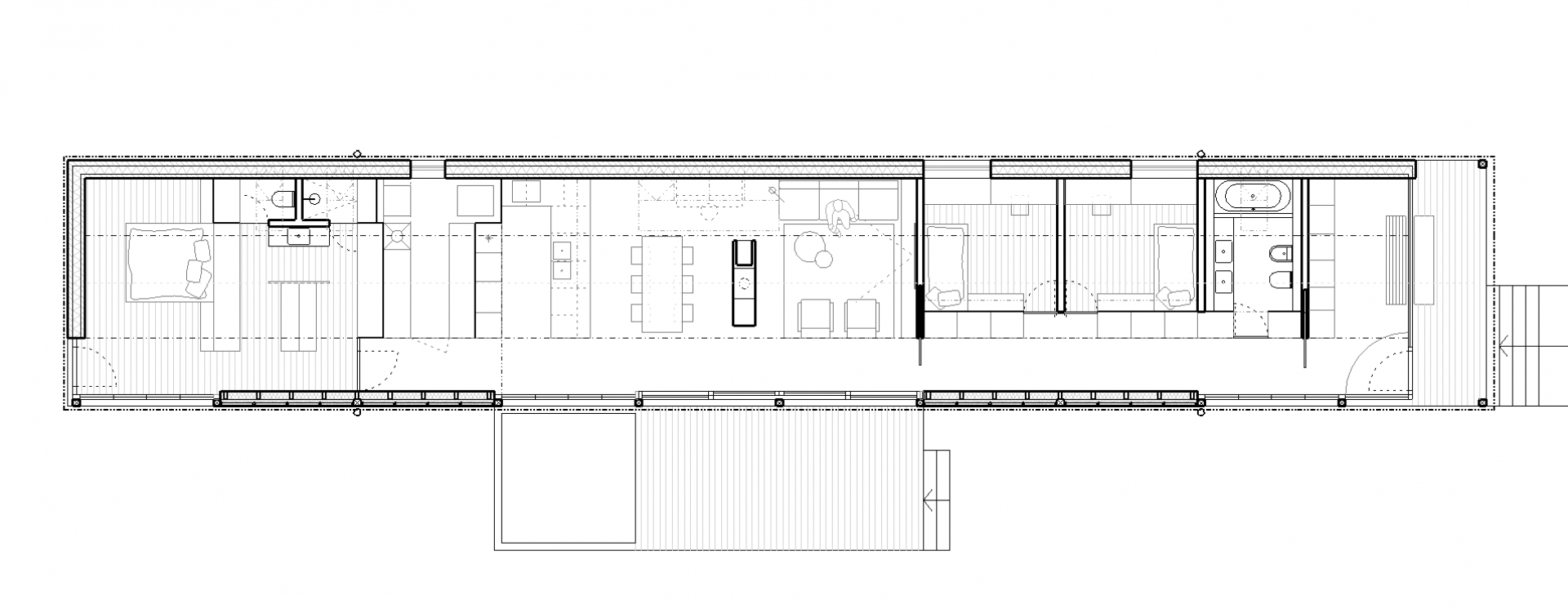
Jednopodlažní dům pro čtyřčlennou rodinu v rodném místě. Původní projekt velkorysého domu s plochou střechou musel být přepracován na dům se střechou sedlovou s ohledem na změnu územního plánu obce. Podélný přízemní dům vedle lesíka s orientací na západ do zahrady na okraji obce. Dům z pohledové betonové sendvičové obvodové stěny, k níž je vše ostatní přimknuto - dřevostavba s plechovou střechou se skutečným sedlem ve svém vrcholu. Dům s výraznými detaily - červeným krbem, betonovou stěnou, střechou z vlnitého plechovou a nábytkem místo stěn. Dům pro moderní rodinu, která se tady, v malé obci nedaleko Prahy, bude cítit dobře.

  • Projekt: 2020 - 2023
  • Realizace: 2023 - probíhá
  • Užitná plocha: 144m2
  • Sdílet: