Rodinný dům v Nouzově u Prahy

INFO O PROJEKTU

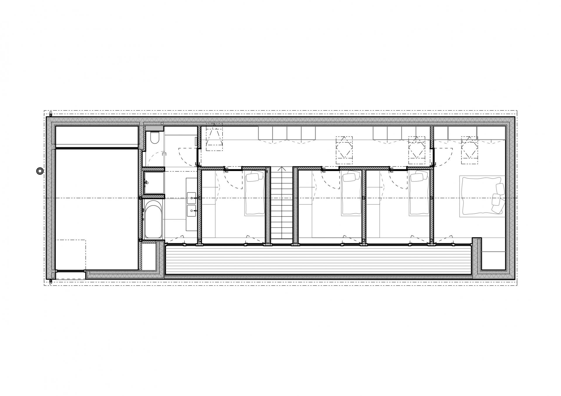
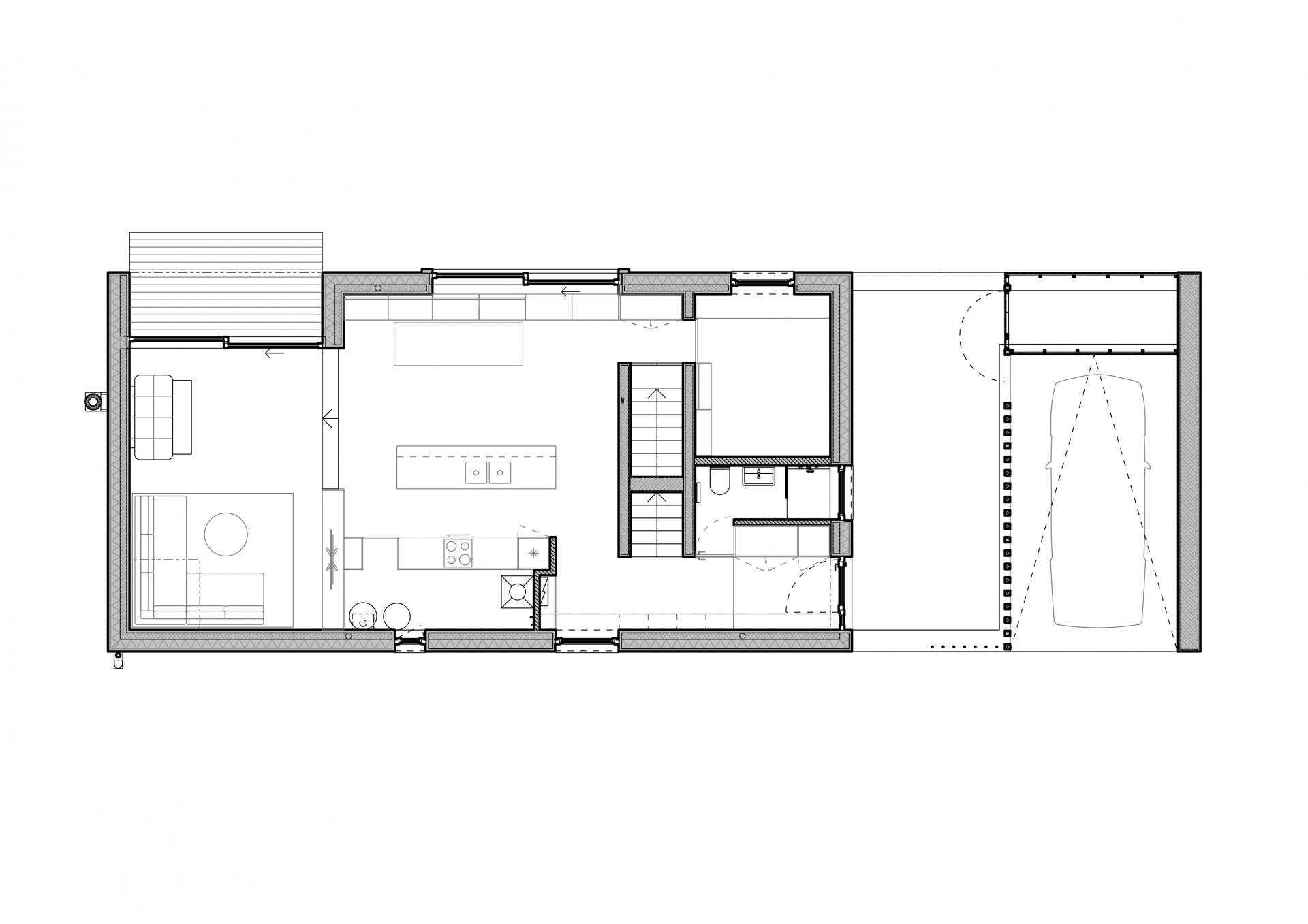
Tradiční venkovský dvoupodlažní rodinný dům pro pětičlennou rodinu na mírně svažitém pozemku na okraji klidné zástavby původních chat, víkendových vilek a rodinných domů. Původní rekreační domek dispozičně ani konstrukčně neodpovídal záměru investora a byl odstraněn. Na pozemku zůstala jen jeho dominanta, úžasný vzrostlý buk. Nový dům je částečně podsklepený, navržený v tradiční formě se sedlovou střechou jako podélný jednotrakt. Dům je umístěn rovnoběžně podél přístupové cesty s orientací do zahrady. Vstupuje se krytým průchodem v přízemí domu, opticky propojujícím vstup z ulice se zahradou. V přízemí je obytná část v patře ložnice propojené velkou východní terasou, zaříznutou do střechy. Krytá terasa v přízemí propojuje obývák s kachlovými kamny se zahradou přímo proti vzrostlému buku, který poskytuje jedinečný výhled a v létě příjemný stín. 

  • Projekt: 2019-2020
  • Realizace: 2020-2022
  • Užitná plocha: 173m2
  • Sdílet: